Проект предусматривает строительство комплекса зданий. Включает придорожный отель четыре звезды на федеральной трассе Р-255 Байкал. Особенность проекта в его уникальном соседстве с вертолетной площадкой и наличием всей необходимой инфраструктуры.
Локация
Расстояние от объекта до центра Новосибирска 40 км. Рядом расположена вертолетная площадка. Участок с кадастровым номером 54:18:020401:2466 в Мошковском районе НСО, площадью 2,7 Га. Расположен на первой линии федеральной трассы и имеет необходимые примыкания для съезда и выезда автомобильного транспорта.
Целевая аудитория
Целевой аудиторией являются коммерческие перевозчики, туристические группы и бизнес-путешественники. Уникальное расположение объекта с собственной вертолетной площадкой формирует конкурентное преимущество и позволяет диверсифицировать доходы. Вертолетный клуб РосИнсталАвиа, который предоставляет услуги обучения пилотов, ВИП-трансфер и вертолётные экскурсии.
Для дальнобойщика, проводящего дни в кабине фуры, это островок покоя, где можно вытянуть уставшие мышцы, принять душ и вкусно покушать. Для состоятельного туриста, это удобная точка для пересадки с автомобиля на вертолет. В связи с тем что комплекс расположен в относительной близости от Новосибирска, планируем поток гостей в ресторан на шоу и вертолетные экскурсии.
Федеральная трасса Р-255 Байкал характеризуется стабильно высоким трафиком более 5 000 ТС/сутки:
- Дальнобойщики (50% заполняемости)
- Туристы (35% заполняемости)
- Бизнес-авиация (15% заполняемости)
Основные сооружения комплекса

Отсутствие аналогичных объектов с на участке протяженностью более 150 км создает перспективную рыночную нишу.
Гостиница
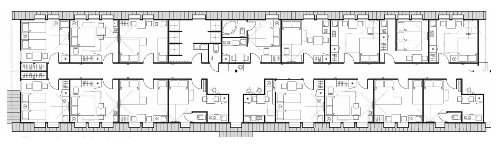
- Придорожный отель 3 этажа и 50 комфортабельных номеров
- современный фасад с панорамными окнами
- круглосуточная стойка регистрации
- зона отдыха
- прачечная

Ресторан
- отдельное одноэтажное здание на 100 посадочных мест
- терраса с видом на лес
- меню с разнообразной кухней
- сцена для шоу
- собственная фирменная пивоварня
Станция технического обслуживания
- 4 сервисных поста для грузовиков
- мойка автомобилей и сопутствующие услуги
- заправка автомобилей топливом и adblue
- vагазин автозапчастей
Парковка
- 30 мест для грузовиков и легковых автомобилей
- ночное освещение и видеонаблюдение площадки
- кинотеатр под открытым небом
- КПП
Инвестиционные показатели проекта
- Общий объем инвестиций: — млн руб.
- Срок строительства: — месяцев
- Окупаемость проекта (PB): — года
- Внутренняя норма доходности (IRR): -%
- Чистая приведенная стоимость (NPV): — млн ₽.
Прогнозируемая годовая выручка
Валовый доход составляет — млн руб, в том числе:
- Проживание —
- Питание —
- Авиауслуги —
- Услуги СТО —
- Дополнительные услуги —
Риски
Основные риски основаны на сезонности пассажиропотока в придорожный отель. Возможное снижение на 25% в зимний период. Увеличение сроков согласования строительства авиационной инфраструктуры. Стратегия минимизации рисков предусматривает создание стабилизационного фонда и предварительное получение заключений Росавиации. Также рекомендовано вести проект совместно с представителями вертолетного клуба.
Заключение
Проект демонстрирует высокие предварительные показатели экономической эффективности. Соответствует критериям инвестиционной привлекательности. Интеграция наземной и воздушной инфраструктуры формирует уникальное конкурентное предложение на рынке придорожного сервиса. Создает предпосылки для развития легкомоторной авиации в России.